| 価格 | 4,180万円 ![]() |
||||
|---|---|---|---|---|---|
| 所在地 | 神奈川県横浜市瀬谷区下瀬谷2丁目
この地域周辺の物件を見る |
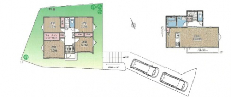
土地面積 | 102.35m² (30.96坪) | 建物面積 | 80.74u |
| 築年月 | 2026年4月築 | 間取り | 3LDK (洋室5.2/洋室5.7/洋室6/LDK15) | ||
| 交通 |
相鉄本線 瀬谷 下瀬谷3丁目 バス8分 停歩1分
|
||||
電話をかける(携帯・PHS可)
0120-295-554
「ホームページを見た」とお伝え下さい。
お問い合わせ番号をお伝えください
RHS-im-63702
| 特徴 |
|
|---|---|
| セールスコメント | - |
| 採光面 | 南 | 構造/階数 | 木造/地上2階建 |
|---|---|---|---|
| 建ぺい率 | 60(%) | 容積率 | 200(%) |
| 駐車場 | 有 | 現況/引渡し | 建築中/相談 |
| 土地権利 | 所有権 | 私道負担面積 | あり 138m² |
| 接道状況 | 接道: 北 私道 道路幅: 5.5m | 用途地域 |
第一種住居地域
|
| セットバック | なし | 法令上の制限 | - |
| 地目 | 宅地 | 地勢 | 低地 |
| 建築確認番号 | 第25KAK建確01183号 | 都市計画 | 市街化区域 |
| 取引態様 | 仲介 | ||
| 情報更新日 | 2026年04月09日 | 次回更新日 | 2026年04月23日 |
| 小学校区 | 横浜市立瀬谷さくら小学校 (神奈川県横浜市瀬谷区) この学区の他の物件を見る |
中学校区 | 下瀬谷中学校 (神奈川県横浜市瀬谷区) この学区の他の物件を見る |
|---|
電話をかける(携帯・PHS可)
0120-295-554
「ホームページを見た」とお伝え下さい。
お問い合わせ番号をお伝えください
RHS-im-63702
| 価格 | 万円 | ||
|---|---|---|---|
| 年利率 | % |
||
| ボーナス払い | 返済年数 | ||
| 頭金 | 直接入力する | 万円 | |

毎月のご返済額 |
ボーナス(×年2回) |
物件価格4,180万円 |
![]() |
![]() |
横浜市瀬谷区下瀬谷2丁目
4180万円〜4280万円 |
電話をかける(携帯・PHS可)
0120-295-554
「ホームページを見た」とお伝え下さい。
お問い合わせ番号をお伝えください
RHS-im-63702
物件検索
お電話での
お問い合わせ
TEL:0120-295-554
10:00〜19:00/毎週火曜日・水曜日定休
エムズ住宅販売
©M’s zyutakuhannbai
☆POINT☆
学校やスーパー、公園も近くにあります。
生活し易い地域です!!
【近くの店舗】
オーケー下瀬谷店(120m)
ユニクロ横浜下瀬谷店(220m)
セブンイレブン横浜下瀬谷2丁目店(120m)
TSUTAYA下瀬谷店(400m)
クリエイトエス・ディー下瀬谷店(587m)
【公 園】
下瀬谷第2公園(555m)
【病 院】
聖仁会横浜甦生病院(1470m)
【学 区】
横浜市立下瀬谷保育園(約1240 m)
横浜市立瀬谷さくら小学校(約555 m)
横浜市立下瀬谷中学校(約549 m)