| 価格 | 4,780万円値下がり ![]() |
||||
|---|---|---|---|---|---|
| 所在地 | 神奈川県鎌倉市岡本1丁目
この地域周辺の物件を見る |
専有面積 | 82.46u | 築年月 | 1990年8月築 |
| 交通 |
JR東海道本線 大船 徒歩6分
|
管理費等 | 16,490円 | 修繕積立金 | 14,840円 | 所在階/階数 | 2階/地上8階建 | バルコニー面積 | 8.2m² |
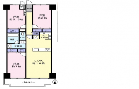
| 間取り | 3LDK (洋室7/洋室6/洋室5.5) | ||||
電話をかける(携帯・PHS可)
0120-295-554
「ホームページを見た」とお伝え下さい。
お問い合わせ番号をお伝えください
RHS-im-55551
| 特徴 |
|
|---|---|
| セールスコメント | - |
| 採光面 | 南 | 取引態様 | 仲介 |
|---|---|---|---|
| 現況 | 空家 | 引渡し | 2025年12月下旬 |
| 総戸数 | 43戸 | 構造 | SRC造 |
| テラス面積 | - | 専用庭面積 | - |
| 駐車場 | 有:18,000円/月 | 駐輪場 | 有 |
| 建物権利 | 所有権 | 土地権利 | 所有権 |
| 用途地域 | 第一種住居地域 - - | 管理態様 | 管理形態:委託(常駐) 管理組合:あり 管理会社:株式会社グローリア |
| 情報更新日 | 2026年03月01日 | 次回更新日 | 2026年03月15日 |
| 小学校区 | 鎌倉市立玉縄小学校 (神奈川県鎌倉市) この学区の他の物件を見る |
中学校区 | 玉縄中学校 (神奈川県鎌倉市) この学区の他の物件を見る |
|---|
電話をかける(携帯・PHS可)
0120-295-554
「ホームページを見た」とお伝え下さい。
お問い合わせ番号をお伝えください
RHS-im-55551
| 価格 | 万円 | ||
|---|---|---|---|
| 年利率 | % |
||
| ボーナス払い | 返済年数 | ||
| 頭金 | 直接入力する | 万円 | |

毎月のご返済額 |
ボーナス(×年2回) |
物件価格4,780万円 |
電話でお問い合わせ
エムズ住宅販売
|
電話をかける 0120-295-554 ※「ホームページを見た」とお伝えください。 |
お問い合わせ番号をお伝えください RHS-im-55551 |
|---|
物件検索
お電話での
お問い合わせ
TEL:0120-295-554
10:00〜19:00/毎週火曜日・水曜日定休
エムズ住宅販売
©M’s zyutakuhannbai
★リノベーション物件★
☆ P O I N T ☆
■南面バルコニーで日当たり良好
■全居室収納、パントリー(食器・食品の収納庫)
■南側に公園が隣接されていてお子様がいるご家庭でも安心
■ショッピングモール「大船ルミネウイング」まで徒歩9分
■鎌倉市立玉縄小学校まで徒歩約14分
■鎌倉市立玉縄中学校まで徒歩約23分
■徒歩圏内にコンビニ、スーパー、ドラッグストアあり!